For an 3D Interactive Matterport Walkthrough Click Here
Click play to watch the walkthrough video below

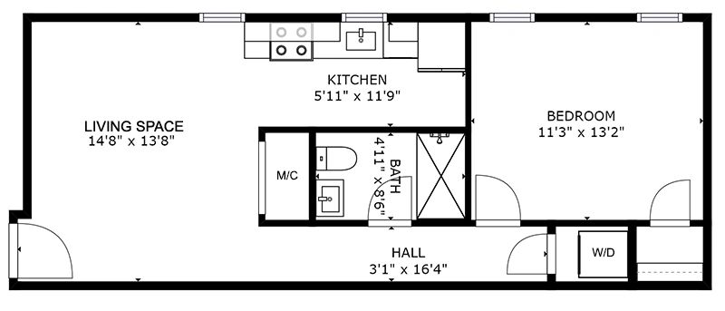
Nice galley kitchen with plenty of natural light off of a spacious living space.
All windows in the apartment have faux wood blinds.
Compact washer and condenser dryer in closet at end of hallway outside bedroom.
There are 2 full size washers and dryers in the basement for larger items and loads.

Great view of the city from the kitchen window.
Upgraded appliances in kitchen
The microwave above the stove is also a convection oven.

Elegant bathroom with custom built in shelves and a modern vanity.
The vanity has multiple storage options and the gold mirror has a storage shelf built in,
Faux marble quartz tile floor.

Herringbone tiled walk in shower with built in shelves, recessed lighting, a tiltable rain shower head and an adjustable handheld shower wand.

Lots of natural light in the bedroom with the multiple windows.
Each bedroom comes equipped with a remote controlled ceiling fan with lighting.
Fan blades are dual sided to work with your color preference.

Do you prefer using shelves, short hanging, or full length hanging for your clothing and accessories?
A fully adjustable closet to meet any of your storage needs.
